Overview

With spectacular forested views, flexible living spaces, and a location just a block from historic downtown in one of Oregon’s most charming small towns, this property is as inviting as it is versatile. Whether you dream of working from home, hosting extended family, or generating extra income, this home provides endless opportunities.

A unique balance of retreat-like privacy and small-town convenience. A short stroll takes you to downtown Brownsville, filled with historic charm, yet you’re only 30 minutes from Eugene or Corvallis—close enough for commuting but far enough to enjoy the peace and quiet.

The upper level is filled with light, thanks to a stunning wall of windows that frame forest and mountain views. Vaulted cedar ceilings and wood floors create warmth and character, while a wood-burning stove makes the living space feel cozy year-round. This level also includes 2 BRs, a full Ba, and a deck where you can unwind and take in the scenery.

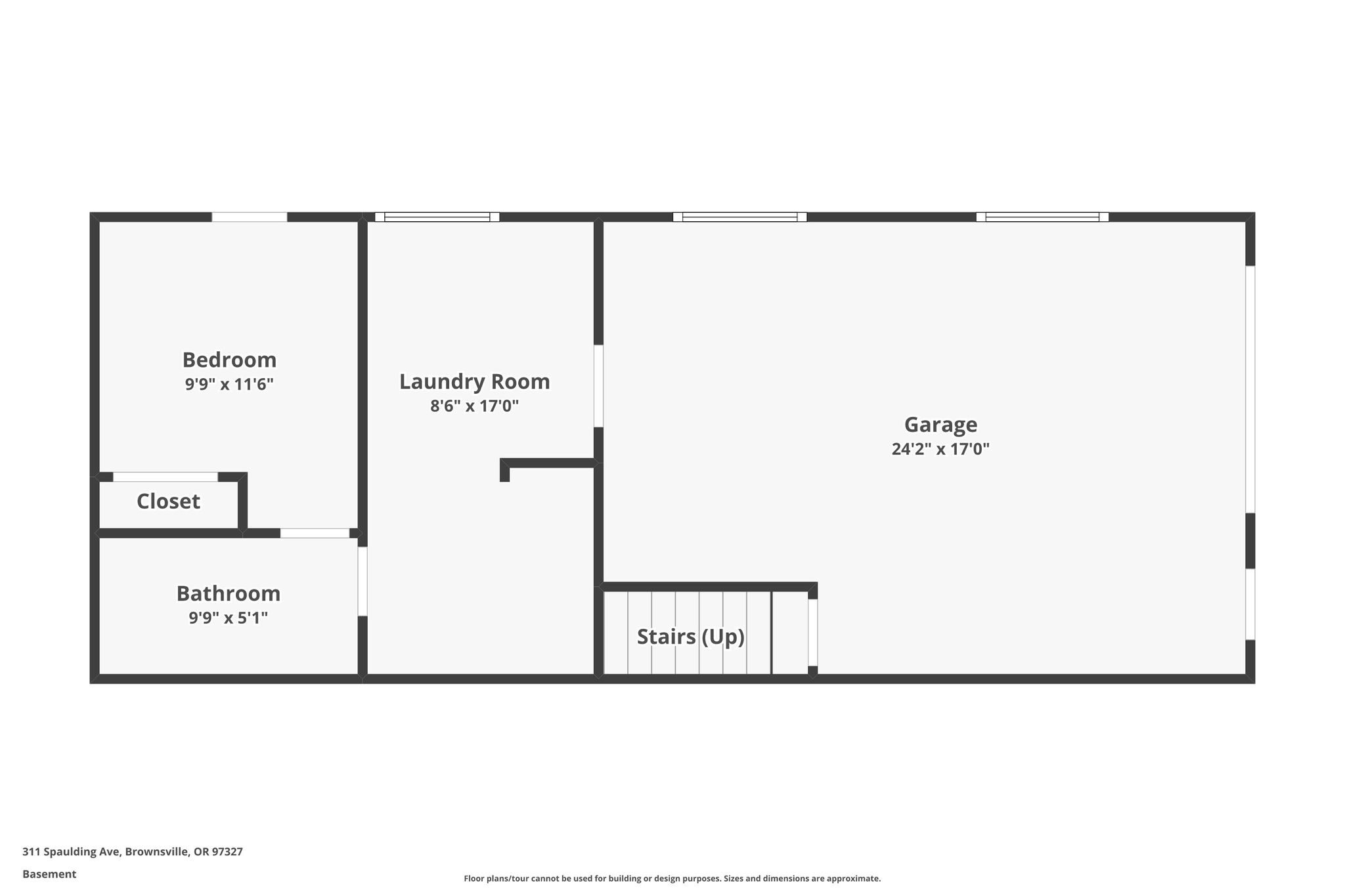
Downstairs, a spacious one-car garage provides storage and utility, while a separate BR and full Ba with its own entry offer great flexibility—perfect for a guest, office, or private rental.

Just steps away, you’ll discover a separate studio-style cabin complete with kitchenette and full bath. This detached space is ideal for multigenerational living, a private home office, or as an income-producing rental. With its own access and amenities, it feels like a home within a home.

The property is thoughtfully designed for convenience and lifestyle. Two driveways make parking easy, with one driveway offering the perfect spot for an RV, boat, or additional tenant parking. Outdoor areas give you space to relax, garden, or simply enjoy the natural setting.

This property represents an opportunity to live with forested views, to enjoy both privacy and connection, and to shape your home around your lifestyle and needs. Truly a rare find, waiting for its next fortunate owner.

Year Built 2014

Video

Video

3D Tours

ADU Tour
House Tour

Floor plans

Adu
Basement
Floor-1

CONTACT

Listing presented by

/
user photo
Triple Oaks Realty
Jill Schuster 200503390
Principal Broker, GRI, CBR, CNE, CRS, MCNE, CLHMS

Get in touch

Thank you!

Your message is sent.

We will be in touch with you soon.

Location

311 Spaulding Avenue, Brownsville, Oregon 97327, United States